-
-
Beechworth 
Beechworth 6400 7300 46.7 1 -
Castlemaine 
Castlemaine 7300 6400 46.7 1 -
Coolgardie 
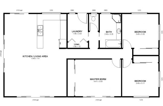
Coolgardie 8200 7300 59.9 1 -
Eldorado 
Eldorado 5400 6400 34.6 1
-
-
-
Basswood 
Basswood 12020 7300 87.7 2 -
Derwent 
Derwent 9920 8200 81.3 2 -
Eastbrook 
Eastbrook 9620 8200 78.9 2 -
Haywood 
Haywood 1 9820 7300 71.7 2 
Haywood 2 9220 7300 67.3 2 -
Ironbark 
Ironbark 9620 8200 78.9 2 -
Opal Ridge 
Opal Ridge 1 9240 7300 67.5 2 
Opal Ridge 2 10020 7300 73.1 2 -
Villa Carlita 1 
Villa Carlita 1 9100 9100 82.8 2 -
Villa Danielle 
Villa Danielle 8200 8200 67.2 2 -
Villa Georgia 
Villa Georgia 7300 7300 53.3 2 -
Wyalla 
Wyalla 8200 7300 59.9 2
-
-
-
Avondale 
Avondale 10820 8200 88.7 3 -
Brookland 
Brookland 1 12640 9100 115 3 
Brookland 3 12650 9100 115.1 3 -
Copperwood 
Copperwood 12640 8200 103.6 3 -
Hawthorn 
Hawthorn 18040 7300 131.7 3 -
Highwood 
Highwood 12640 8200 103.6 3 -
Maple Ridge 
Maple Ridge 12040 8200 98.7 3 -
Oak Ridge 
Oak Ridge 1 12200 8200 100 3 
Oak Ridge 2 12200 8200 100 3 -
Silkwood 
Silkwood 15100 8200 123.8 3
-
-
-
Plantation 
Plantation 25420 8200 208.4 4 -
Hamilton 1 
Hamilton 1 21080 8200 172.9 4 -
Capeview 
Capeview 15060 8200 123.5 4
-